La Clínica esta insertada en un edificio medico
asistencial de 5 pisos. De tal forma que concretamente nuestra institución
ocupa 3 niveles de la edificación, y el resto de las áreas son de tipo consulta
externa de distintos propietasrios.
Planta sótano
1.
ESTACIONAMIENTO (ya
existente en el edificio, no se modificará)
2.
PATIO DE SERVICIO
3.
ACCESO DE
CAMILLAS-ASCENSOR
4.
SALA DE GASES
MEDICINALES
5.
CUARTOS DE DESECHOS
COMUNES Y DESECHOS PATOLÓGICOS.
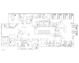
Planta Baja
1.
HALL DE ACCESO –
RECEPCION. ESTA ÁREA NO SE MODIFICARÁ EN EL PROYECTO
2.
AREA DE IMAGENOLOGIA
3.
HALL QUIRURGICO
4.
AP DE CONSERJERIA
Planta 1
1.
AREA DE HABITACIONES
2.
AREA DE CAMAS
AMBULATORIAS
Planta 4
1.
AREA DE CONSULTA EXTERNA
2.
AREA DE APOYO DE
SERVICIOS.
3.
AREA ADMINISTRATIVA.


No hay comentarios.:
Publicar un comentario